£9.99 GBP

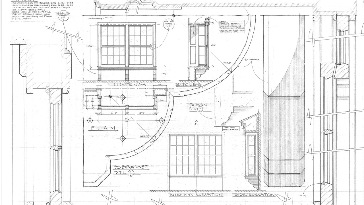
Sash Window Print

A3 Fine Art Print

This exclusive print and frame at home download is now available for the first time. Based on a victorian sash window, this hand drafted detail sheet is full of character and interest. A great talking point and reference for any architectural features fans.